Eladó új építésű téglalakás - Budapest, VII. kerület

KAPCSOLAT
Farantai Márta


+36 30 665

fmingatlan15@

Az időpont kérés naptár ikonja
IDŐPONTOT KÉREK
A visszahívás kérés telefon ikonja egy azt körbe ölelő nyíllal
VISSZAHÍVÁST KÉREK
Ajánlom egy ismerősömnek ikon
AJÁNLOM EGY ISMERŐSÖMNEK
Facebook megosztás ikon
MEGOSZTÁS

KAPCSOLATFELVÉTEL

Küldés

Az üzenetet sikeresen elküldtük!
Hiba történt!
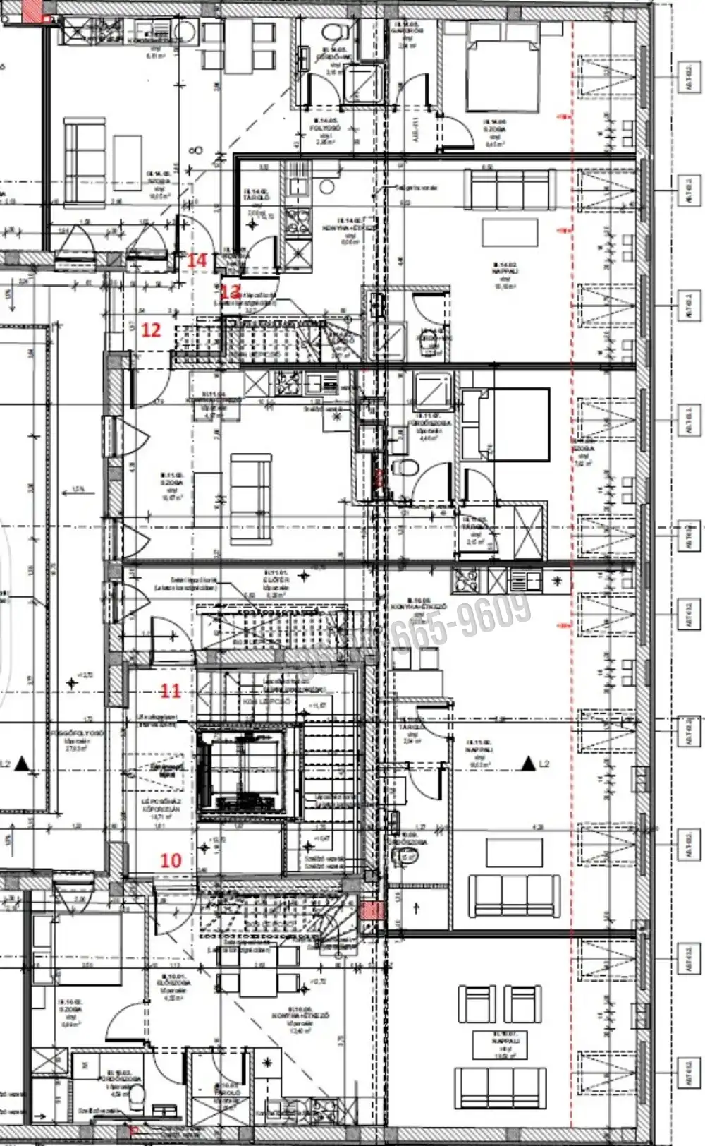
INGATLAN ADATAI

Ingatlan jellege

téglalakás

Belső terület

81 m²

Tájolás

dél

Építési állapot

új

Építési mód

ytong

Szobák száma

3 szoba

Szobák elhelyezkedése

külön nyílik min. 2 szoba

Kert

(közös kerthasználat)

Emelet

3.

Az ingatlan a legfelső szinten van.

Épület szintje

3.

Épült

2026

Lift

van

Ingatlan állapot

kívül: új
belül: új

Klíma

van

Szigetelés

15 cm

Ablak szerkezete

3 rétegű thermoplan

Fűtés

mennyezeti hűtés, padló fűtés

Komfort

luxus

Kilátás

utcára

Energetika

A++:

Extrák

airbnbre alkalmas, a++ energetikai besorolású apartmanház, új látványlift, tetőterasz, taljszondás hőszivattyú, padlófűtés, mennyezeti hűtés, video kaputelefon okos rendszerrel, mosókonyha, ingyenes parkolási engedély, bérelhető mélygarázs limitált számban, kertben öntözőrendszer

Az időpont kérés naptár ikonja
HTML
Az időpont kérés naptár ikonja
PDF
Eladó új építésű téglalakás
Ingatlan azonosító:
86_fmi

Budapest, VII. kerület, Erzsébetváros (Nagykörúton kívül)

Irányár

175.4 M Ft

Szobák

3 szoba

Emelet

3

Terület

81 m²
INGATLAN LEÍRÁSA
Befektetőknek kihagyhatatlan! VII.kerületben AirBNBre alkalmas lakások A++ energetikai besorolású APARTMANHÁZBAN, Erzsébetvárosban!

BELVÁROSI környezetben mégis csendes mellékutcában ÚJ építésű, TETŐTERASZOS apartmanok, közel az Oktogonhoz, a Madách Színházhoz.

Még 8 db lakás eladó 2. és 3. emeleten.

A 35-90 m²-es, 1-3 szobás, nagy belmagasságú lakások alkalmasak rövid távú (AirBNB) és hosszú távú bérbeadásra egyaránt, azonnal kiadható, köszönhetően a remek lokációnak, és közlekedésnek.

A 3. emeleti lakásokhoz tágas 10-30 m²-es TETŐTERASZok tartoznak.
A nagyobb, 80 m² feletti lakások – igény szerint – akár 3 apartmanlakásként is használhatók, külön fürdőszobákkal és közös konyharésszel. Ez esetben az ár változik.

A lakások PADLÓFŰTÉSsel, mennyezeti HŰTÉS/FŰTÉSsel, zsaluziával/vagy REDŐNY/, KÖZPONTIi (hővisszanyerős) szellőztetéssel, KLÍMA berendezéssel, /mobiltelefonnal kapcsolt/ Video KAPUTELEFON OKOS rendszerrel épülnek, mennyezeti SPOTlámpa, és LED hangulatvilágítás előkészítéssel. A kapcsolók és dugaljak német GIRA / JUNG prémium szerelvények, mint a Grohe csaptelepek.

Az épület KORSZERŰ műszaki tartalommal, német szabvány szerint, német minőségben, passzívház kategóriában (A++ energetikai besorolással), a pincében elhelyezett TALJSZONDÁS hőszivattyúval, szigeteléssel biztosítja a lakások KÖLTSÉGHATÉKONY használatát és értékállóságát.

Beszerelésre kerül egy ÚJ LÁTVÁNYLIFT, mely a pincétől a 3. emeletig közlekedik.


A PINCEszinten a lakások számára ZÁRT kerékpár-, elektromos roller- és babakocsi tároló, MOSÓkonyha, és a lakásokhoz tartozó zárt SAJÁT TÁROLÓ kerül kialakításra.

GONDOZOTT, automata öntözőrendszerrel ellátott közös KERTt, mely emeli a lakókörnyezet színvonalát.

Az új tulajdonosok INGYENES PARKOLÁSi engedélyt kapnak, illetve a szomszédos szálló MÉLYGARÁZSában van lehetőség bérelni alacsony áron néhány dedikált parkolóhelyet.

TERVEZETT ÁTADÁS: 2026.08.31. A lakásokat KULCSRAKÉSZ állapotban adják át – kérésre akár bútorozottan, konyhabútorral, okosotthon rendszerrel.
Elsődlegesen – eddig – befektetők vásároltak lakást, kiadásra vagy gyermeküknek (későbbi használatra, hogy legyen hol laknia az egyetemi évek alatt).

Hívjon most!
További információkkal állok rendelkezésére hétvégén is!
Visszahívom, ha hívását épp nem tudom fogadni.
Egyben tájékoztatom, hogy ön, mint érdeklődő hozzájárul személyes adatai /különösen neve, és telefonszáma/, a hirdetést feladó Fmingatlan általi /biztonságos, és körültekintő/ kezeléséhez, nyilvántartásához. Megtekintés esetén is a törvény által előírt módon kell eljárnunk! A hirdetésben szereplő információk a megbízótól kapott adatok alapján készültek.

FMingatlan - Farantai Márta
TELJESKÖRŰ ÜGYINTÉZÉS Megbízástól a birtokba adásig!

HITEL
Ha lehetséges, biztosan megoldjuk! Bankfüggetlen hiteltanácsadóval megtaláljuk - személyre szabottan Önnek - a legkedvezőbbet, költségmentes ügyintézéssel.

ENERGETIKAI TANÚSÍTVÁNY (zöldkártya ingatlanhoz)
2012. január 1.-től a használt lakások adásvételénél is kötelező! Hívjon! Elkészítjük Önnek!

ÜGYVÉD
Megbízható ügyvédre van szüksége? Irodánk ügyvédje, akivel több mint tíz éve működünk együtt mindenki megelégedésére, nagy szaktudással bír ingatlan ügyekben, és kedvező áron elkészíti az Ön adásvételi szerződését.

LAKÁSBIZTOSÍTÁS
Ingatlant vásárolt? Vagy a régi biztosítását lecserélné? A Magyarországon tevékenykedő összes biztosító ajánlatai közül kiválasztjuk Önnek az árban és a szolgáltatás minőségében a leginkább megfelelőt. Mindezt teljesen ingyen.



INGATLAN ADATAI

Ingatlan jellege
téglalakás
Belső terület
81 m²
Tájolás
dél
Építési állapot
új
Építési mód
ytong
Szobák száma
3 szoba
Szobák elhelyezkedése
külön nyílik min. 2 szoba
Kert
(közös kerthasználat)
Emelet
3.
Az ingatlan a legfelső szinten van.
Épület szintje
3.
Épült
2026
Lift
van
Ingatlan állapot
kívül: új
belül: új
Klíma
van
Szigetelés
15 cm
Ablak szerkezete
3 rétegű thermoplan
Fűtés
mennyezeti hűtés, padló fűtés
Komfort
luxus
Kilátás
utcára
Energetika
A++:
Extrák
airbnbre alkalmas, a++ energetikai besorolású apartmanház, új látványlift, tetőterasz, taljszondás hőszivattyú, padlófűtés, mennyezeti hűtés, video kaputelefon okos rendszerrel, mosókonyha, ingyenes parkolási engedély, bérelhető mélygarázs limitált számban, kertben öntözőrendszer

KAPCSOLAT
Farantai Márta
Farantai Márta


+36 30 665 9609

fmingatlan15@gmail.com

KAPCSOLAT
Farantai Márta

+36 30 665

fmingatlan15@

Az időpont kérés naptár ikonja
IDŐPONTOT KÉREK
A visszahívás kérés telefon ikonja egy azt körbe ölelő nyíllal
VISSZAHÍVÁST KÉREK
Ajánlom egy ismerősömnek ikon
AJÁNLOM EGY ISMERŐSÖMNEK
Facebook megosztás ikon
MEGOSZTÁS

KAPCSOLATFELVÉTEL

Küldés

Az üzenetet sikeresen elküldtük!
Hiba történt!
INGATLAN ADATAI

Ingatlan jellege

téglalakás

Belső terület

81 m²

Tájolás

dél

Építési állapot

új

Építési mód

ytong

Szobák száma

3 szoba

Szobák elhelyezkedése

külön nyílik min. 2 szoba

Kert

(közös kerthasználat)

Emelet

3.

Az ingatlan a legfelső szinten van.

Épület szintje

3.

Épült

2026

Lift

van

Ingatlan állapot

kívül: új
belül: új

Klíma

van

Szigetelés

15 cm

Ablak szerkezete

3 rétegű thermoplan

Fűtés

mennyezeti hűtés, padló fűtés

Komfort

luxus

Kilátás

utcára

Energetika

A++:

Extrák

airbnbre alkalmas, a++ energetikai besorolású apartmanház, új látványlift, tetőterasz, taljszondás hőszivattyú, padlófűtés, mennyezeti hűtés, video kaputelefon okos rendszerrel, mosókonyha, ingyenes parkolási engedély, bérelhető mélygarázs limitált számban, kertben öntözőrendszer

Az időpont kérés naptár ikonja
HTML
Az időpont kérés naptár ikonja
PDF
Budapest, VII. kerület - Erzsébetváros (Nagykörúton kívül)
Budapest, VII. kerület - Erzsébetváros (Nagykörúton kívül)
Budapest, VII. kerület - Erzsébetváros (Nagykörúton kívül)
Budapest, VII. kerület - Erzsébetváros (Nagykörúton kívül)
Budapest, VII. kerület - Erzsébetváros (Nagykörúton kívül)
Budapest, VII. kerület - Erzsébetváros (Nagykörúton kívül)
Budapest, VII. kerület - Erzsébetváros (Nagykörúton kívül)
Budapest, VII. kerület - Erzsébetváros (Nagykörúton kívül)
Budapest, VII. kerület - Erzsébetváros (Nagykörúton kívül)
Budapest, VII. kerület - Erzsébetváros (Nagykörúton kívül)
Budapest, VII. kerület - Erzsébetváros (Nagykörúton kívül)
Budapest, VII. kerület - Erzsébetváros (Nagykörúton kívül)
Budapest, VII. kerület - Erzsébetváros (Nagykörúton kívül)
Budapest, VII. kerület - Erzsébetváros (Nagykörúton kívül)
Budapest, VII. kerület - Erzsébetváros (Nagykörúton kívül)
Budapest, VII. kerület - Erzsébetváros (Nagykörúton kívül)
Budapest, VII. kerület - Erzsébetváros (Nagykörúton kívül)
Budapest, VII. kerület - Erzsébetváros (Nagykörúton kívül)
Budapest, VII. kerület - Erzsébetváros (Nagykörúton kívül)